Ułatwienia dostępu

SPECJALNE CENY NA WYBRANE PRODUKTY - zapytaj w mailu, a będziesz zadowolony!
| Zapytaj o szczegóły: kontakt@catefalkom.pl

Zarządzanie zgodą
Przejdź do treści głównej

Oferta

Wkład kominkowy IQ 33 insert

13971,57 

Charakterystyczną cechą modelu IQ33 jest technologia spalania WOODBOX®, która sprawia, że płomienie pięknie wypełniają komorę spalania, a paliwo jest efektywnie wykorzystywane. Wkład posiada panele żeliwne pomalowane na biało, tworzące eleganckie wnętrze. Opcjonalnie można wyposażyć go w pilot termostatyczny, który umożliwia wygodne sterowanie.

Zapytaj o dostępność produktu

    Aby wysłać wiadomość wypełnij pole: e-mail i zaznacz powyższą zgodę.

    Opis

    INSTRUKCJE_IQ_IQH_SK_2024

    Wkłady kominkowe Nestor Martin z serii premium IQ to źródło wyjątkowego ciepła w Twoim domu. Ich elegancki design, łączący czyste linie z nowoczesnym wzornictwem, sprawia, że doskonale komponują się z wnętrzem. Oprócz rozgrzewającego ciepła, wkłady kominkowe mają wbudowane wentylatory i dwa wyloty gorącego powietrza, które umożliwiają rozprowadzenie ciepła do innych części domu. System bezpieczeństwa automatycznie wyłącza wentylator po otwarciu drzwi, zapobiegając zasysaniu popiołu do pomieszczenia. Dostępne są w różnych kształtach, rozmiarach i mocy grzewczej.

    Czyste Szkło przez Długi Czas

    Dzięki równomiernemu przepływowi powietrza, pomiędzy szybą a ogniem, szyba pozostaje czysta przez długi czas.

    Technologia Spalania WOODBOX®

    Opatentowana technologia spalania Nestor Martin łączy naturalny ciąg kominowy z podgrzanym powietrzem, tworząc efektowne płomienie, od ogromnych po delikatne tańce.

    Reguluj Intensywność Spalania z Wygodnego Fotel

    Dzięki opcjonalnemu pilotowi, można kontrolować spalanie z wygodnego fotela. Można wybierać między trybem ręcznym a automatycznym, dostosowując intensywność spalania lub ustawiając żądaną temperaturę.

    Dodatkowe Funkcje:

    • Popielniczka o dużej pojemności
    • Czas palenia w trybie nocnym ponad 10 godzin
    • Trwałe palenisko z żeliwnym wypełnieniem

    Informacje dodatkowe

    Waga

    135 kg

    Moc nominalna (kW)

    9,0

    Zakres mocy (kW)

    2-12

    Paliwo

    Drewno

    Materiał

    Stal

    Punkt centralny

    Żeliwo

    Podwójne spalanie

    Tak

    Zdalna kontrola spalania

    Opcjonalny

    Zewnętrzny dopływ powietrza

    Tak

    Boczne drzwi

    Tak

    Efektywność (%)

    80

    Emisje CO (13% O2 ​​%)

    0,13

    Komin

    Górny

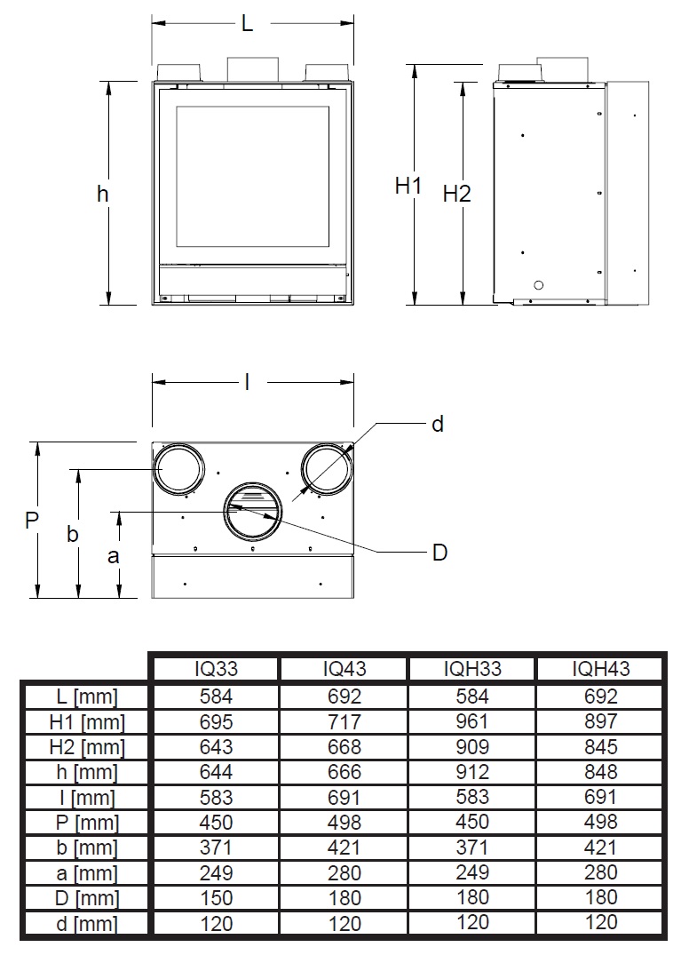
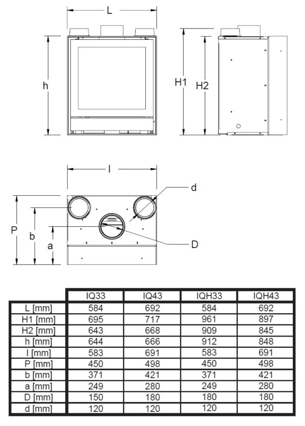
    Średnica rury spalinowej (mm)

    150

    Otwieranie drzwi

    Boczny

    Kolor projektu

    Grafitowy mat

    Przeszklenie

    Prosty

    Szerokość (mm)

    584

    Wysokość (mm)

    644

    Głębokość (mm)

    450

    Kolekcja

    SERIA IQ

    Producent

    NESTOR MARTIN

    Rodzaj produktu

    Wkład kominkowy na ciepłe powietrze

    Opinie

    Na razie nie ma opinii o produkcie.

    Tylko zalogowani klienci, którzy kupili ten produkt mogą napisać opinię.


    Jesteśmy tu dla Ciebie!
    Chętnie odpowiemy na wszystkie Twoje pytania.